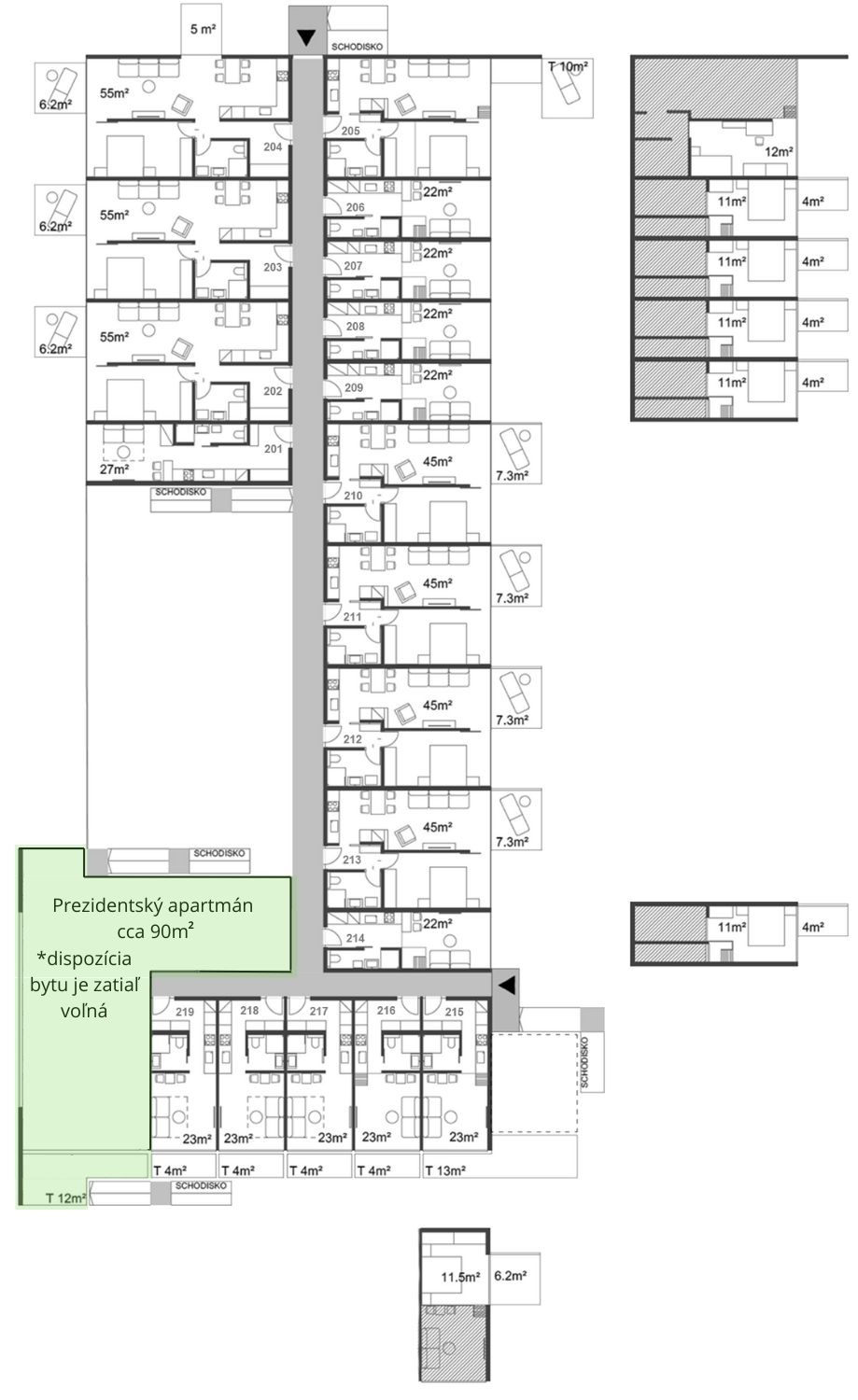
ATELIÉR 220

Ateliér 220 sa nachádza na druhom podlaží a je orientovaný na západ, smerom k lesu, čo prináša pokojné výhľady a príjemné večerné svetlo.
Má výmeru 22 m² a disponuje balkónom s veľkosťou 4 m², ktorý prirodzene rozširuje jeho využitie smerom do exteriéru. Dispozične je riešený ako kompaktný ateliér s otvorenou dennou zónou prepojenou s kuchynskou časťou – praktické a funkčné riešenie pre prácu, oddych aj pokojné fungovanie pod Tatrami.

Páči sa Vám tento priestor?
Napíšte nám a my sa Vám radi ozveme.
Kontaktujte nás
Adresa:
Stolárstvo u Kunaja
Tatranská Štrba 1169
059 41 Tatranská Štrba
Telefónne číslo:
+421 918 910 067
E-mail:
info@1teeresidence.sk
